Specialists In All Metal Fabrications Designed Fabricated Installed
Steel Detailing & 3D Drawings
What Our Clients Say

Steel Detailing & 3D Drawings in Essex, London & Surrounding Areas

At Blackburn & Co Ltd, we provide professional steel detailing and point cloud
scanning as standalone services for commercial, industrial and residential projects.

Whether you need detailing support without fabrication or accurate 3D scanning for
an existing structure, our team delivers precise, build-ready information that keeps your project moving with confidence.

Based in Essex, we cover a radius of 20 miles, taking in large parts of the county and neighbouring London. Whatever the scope of your project, our team members use their considerable skills to elevate your project and help you reach your goals sooner.

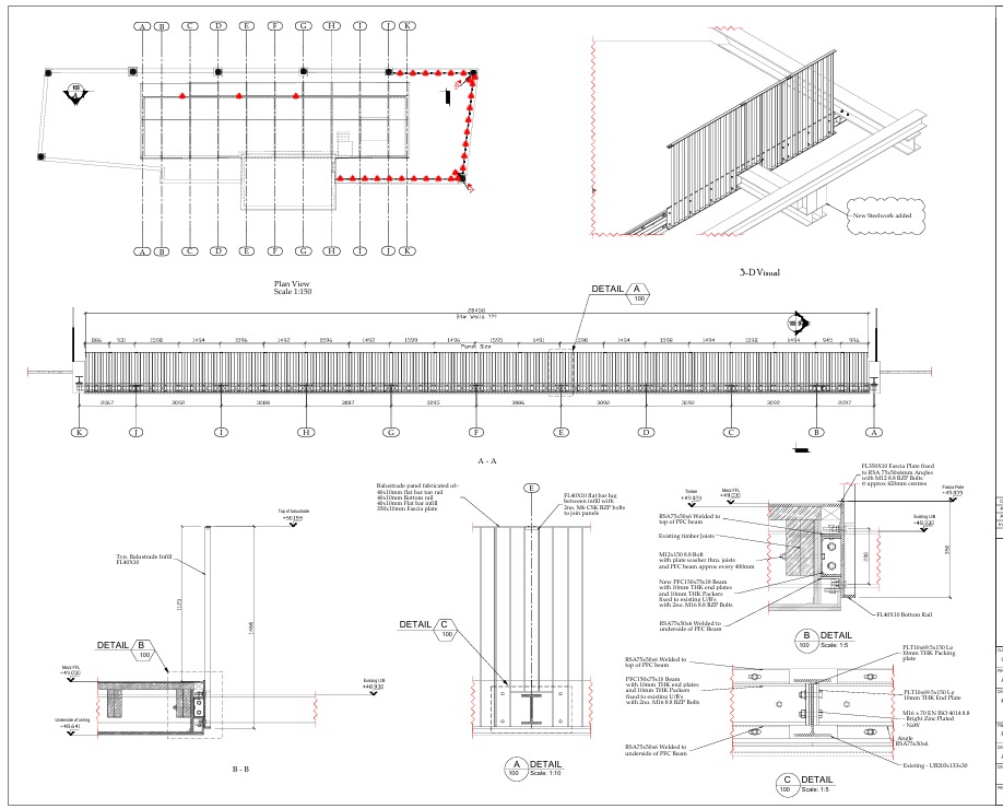
3D Metal Drawings

In need of 3D structural drawings? We can create 3D metal drawings, essentially digital models, that help individuals and businesses visualise their projects. We can input vital information such as dimensions and tolerances to aid your building or manufacturing project.

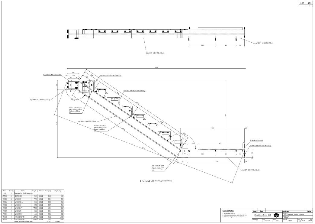
Steel Fabrication Drawings

We produce highly detailed technical drawings that provide a blueprint for steel parts and structures. These are ideal for commercial refits, construction, manufacturing and infrastructure.

3D Point Cloud Scanning

If you are undergoing a commercial refurbishment, you can reap the benefits of our 3D laser scanning services. We use real-world data to identify any structural conflicts before the building stage to prevent delays and reconfiguration.

Our point cloud service provides:

  • High-accuracy 3D scans of existing structures
  • Detailed point cloud data
  • As-built models
  • Conversion into Advance Steel models
  • Clash detection and coordination models
  • Structural steel models for retrofits and extensions

This technology is also suitable for industrial upgrades and plant modifications, residential extensions and structural alterations, as well as projects with missing or outdated drawings.

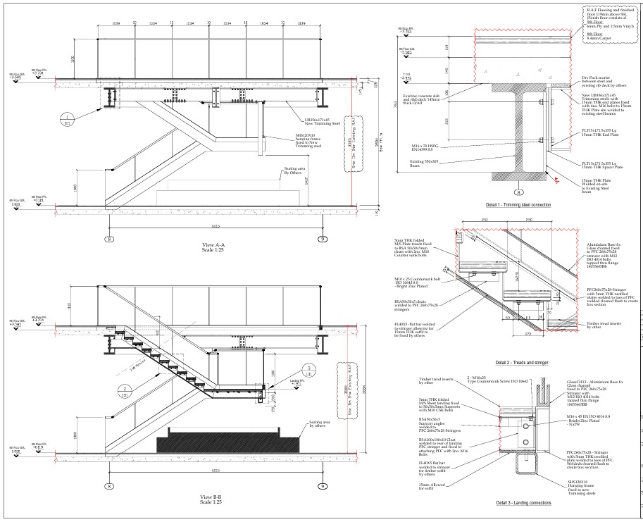
Structural Steel Detailing

Our detailing team produces highly accurate 3D models and fabrication-ready drawings using Advance Steel, ensuring seamless coordination between design, fabrication and installation.

Our steel detailing capabilities include:

  • Structural steel detailing
  • Miscellaneous/bespoke metal detailing
  • Shop drawings
  • GA and erection drawings
  • Connection detailing
  • Anchor bolt setting plans
  • Material take-offs and bills of materials
  • CNC data for fabrication
  • Revision management and drawing updates
  • Realistic visualisations/CGIs

With extensive experience in:

  • Commercial fitouts
  • Architectural Staircases, railings and balconies
  • Industrial facilities
  • Structural steel

We understand real-world site conditions and fabrication workflows — meaning our drawings are practical, clear and ready for production.

Why choose Blackburn & Co. Ltd?

There are several reasons why domestic and commercial customers turn to Blackburn & Co. Ltd for bar and restaurant fit-outs:
  • independent We are independent and family-run
  • tailoredWe offer tailor-made solutions designed and installed by us
  • ServicesWe offer a comprehensive range of metal fabrication services to domestic and commercial customers
  • insuredAll our work is fully insured and guaranteed
  • quotesWe offer free, no-obligation quotes for all of our services
  • standardWe pride ourselves on our high standards of work

Get in Touch

Are you in Essex or London and want to speak to us about bar and restaurant fit-outs? Get in touch with our team today:
Opening hours:

Mon-Fri: 7am to 5pm

Scroll to Top